Продам офис 83.1 м.кв.

на карте
Просмотров 16
1 923 765 руб.
на 15% дешевле похожих объектов ?
Уфа , Дмитрия Донского улица, д.83
Ильгамова Анна
Показать телефон
назначения
Данные актуальны на 23.03.2026
Пожаловаться на объявление
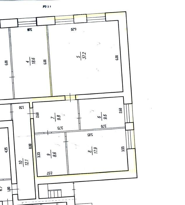
Код лота: 62C46C9-4001-8235-2. Реализуется на торгах. Нежилые помещения первого этажа девятиэтажного жилого здания. Кадастровый номер 02: 55: 030223: 701. Назначение нежилое. Площадь объекта 83,1 кв.м. Этаж / этажность-1 / 9. Обременения (ограничения) не зарегистрировано. Муниципальная собственность. Записи в Едином государственном реестре прав на недвижимость №02: 55: 030223: 701-02/373/2025-1 от 02.07.2025. Год постройки: 1986, материал стен: кирпич, высота помещений 2,50 м. , наличие коммуникаций: центральное отопление, электроснабжение, водоснабжение, канализация. Адрес: Республика Башкортостан, г. Уфа, Орджоникидзевский район, ул. Дмитрия Донского, д. 83 https: //catalog. lot-online. ru/index. php?dispatch=products. view&product_id=1598062

Дополнительная информация

Тип здания - Класс БЦ - Этаж Цоколь Этажность 1 Количество комнат - Вход - Ремонт -
Интернет - Кондиционер - Вентиляция - Пожарная сигнализация - Пропускная система - Охраняемая парковка -
Динамика изменения цен на рынке недвижимости ?

По городу Уфа, в категории Офисная недвижимость » Офисы
За последние полгода средняя сумма за кв.м. выросла на 1769 руб. Колебание цен происходило от 25377 руб. до 29572 руб. На текущий момент наблюдается тенденция к росту цены.
Похожие объявления
Обновлено
23.03.2026
Фотографии
8
Объявление 732416
Уфа, Вологодская улица, д.54/1
1 629 870
руб. Продажа
89.8 м2
Обновлено
19.03.2026
Фотографии
9
Объявление 728661
Уфа, Достоевского улица, д.1
2 065 568
руб. Продажа
89.9 м2
Обновлено
19.03.2026
Фотографии
12
Объявление 728662
Уфа, Левитана улица, д.38
17 578 688
руб. Продажа
96.3 м2
Обновлено
16.03.2026
Фотографии
7
Объявление 735691
Уфа, Рихарда Зорге улица, д.8
3 259 650
руб. Продажа
70.1 м2
Обновлено
13.03.2026
Фотографии
10
Объявление 732856
Уфа, Гвардейская улица, д.62
2 690 900
руб. Продажа
75.8 м2
Обновлено
13.03.2026
Фотографии
7
Объявление 732750
Уфа, Цюрупы улица, д.156/1
3 629 970
руб. Продажа
76.1 м2
Вход в личный кабинет