Продам офис 200.6 м.кв.

на карте
Просмотров 4
4 914 700 руб.
на 10% дешевле похожих объектов ?
Уфа , Первомайская улица, д.35
Ильгамова Анна
Показать телефон
назначения
Данные актуальны на 16.03.2026
Пожаловаться на объявление
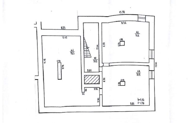
Код лота: 62C46C9-4001-8170-3. Реализуется на торгах. Реализация через аукцион! Объект муниципального нежилого фонда - нежилые помещения подвала четырёхэтажного жилого здания площадью 200,6 кв.м. Кадастровый номер 02: 55: 030163: 387. Обременения (ограничения) не зарегистрировано. Жилое здание расположено на территории объекта культурного наследия местного (муниципального) значения «Градостроительная планировка и застройка центральных улиц города Черниковска Башкирской АССР», включенного в единый государственный реестр объектов культурного наследия (памятниках истории и культуры) народов Российской Федерации на основании приказа Управления по государственной охране объектов культурного наследия Республики Башкортостан от 17 июля 2025 года № 323. Объект является муниципальной собственностью. Год постройки здания 1951, материал стен: кирпич, высота помещений: 2,10м, наличие коммуникаций: центральное отопление, электроснабжение. В Объекте имеются общедомовые коммуникации. Вход в помещения отдельный с улицы. Покупатель обязан обеспечивать свободный доступ соответствующим службам в целях ремонта и обслуживания коммунальных, инженерных, электрических, других линий и сетей, проходящих через Объект. Подробная информация в информационном сообщении. Адрес: Республика Башкортостан, г. Уфа, Калининский район, ул. Первомайская, 35. https: //catalog. lot-online. ru/index. php?dispatch=products. view&product_id=1596939

Дополнительная информация

Тип здания - Класс БЦ - Этаж Цоколь Этажность 1 Количество комнат - Вход - Ремонт -
Интернет - Кондиционер - Вентиляция - Пожарная сигнализация - Пропускная система - Охраняемая парковка -
Динамика изменения цен на рынке недвижимости ?

По городу Уфа, в категории Офисная недвижимость » Офисы
За последние полгода средняя сумма за кв.м. выросла на 1743 руб. Колебание цен происходило от 25377 руб. до 29572 руб. На текущий момент наблюдается тенденция к росту цены.
Похожие объявления
Обновлено
13.03.2026
Фотографии
13
Объявление 735628
Уфа, Дагестанская улица, д.17/1
7 466 680
руб. Продажа
224.9 м2
Обновлено
13.03.2026
Фотографии
6
Объявление 731131
Уфа, Калинина улица, д.зд16А
3 288 322
руб. Продажа
169.9 м2
Вход в личный кабинет