Продам офис 100.8 м.кв.

Просмотров 3
2 782 080 руб.
100.8 м2
Уфа , Первомайская улица, д.30а
Ильгамова Анна
Показать телефон
назначения
Данные актуальны на 16.03.2026
Пожаловаться на объявление
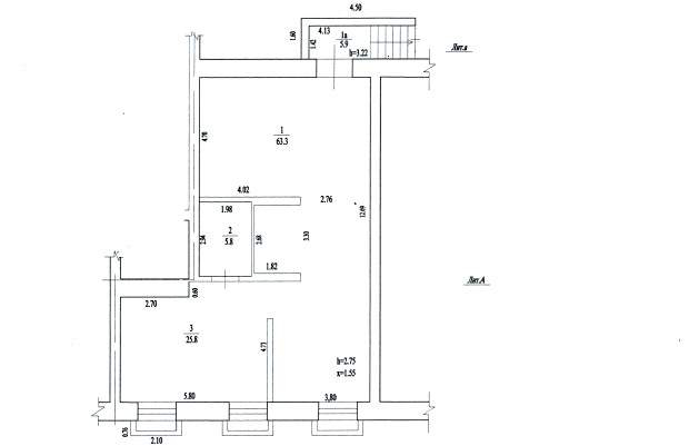
Код лота: 62C46C9-4001-8170-2. Реализуется на торгах. Реализация через аукцион! Объект муниципального нежилого фонда - нежилые помещения подвала пятиэтажного жилого здания площадью 100,8 кв.м. Кадастровый номер 02: 55: 030169: 574. Обременения (ограничения) не зарегистрировано. Объект является муниципальной собственностью. Год постройки здания 1956г, материалы стен кирпич, высота помещений: 2,75м, наличие коммуникаций: центральное отопление, электроснабжение. В Объекте имеются общедомовые коммуникации. Вход в помещения отдельный с улицы. Адрес: Республика Башкортостан, г. Уфа, Калининский район, ул. Первомайская, 30А. Подробнее в информационном сообщении. https: //catalog. lot-online. ru/index. php?dispatch=products. view&product_id=1596938

Дополнительная информация

Тип здания - Класс БЦ - Этаж Цоколь Этажность 1 Количество комнат - Вход - Ремонт -
Интернет - Кондиционер - Вентиляция - Пожарная сигнализация - Пропускная система - Охраняемая парковка -
Объекты, находящиеся поблизости
Банки, банкоматы
Совкомбанк 183м
Альфа-Банк 201м
ВТБ 255м
Сбербанк 269м
Сбербанк 295м
Столовые, кафе
Amsterdam 71м
Сирийская шаурма 169м
ЧебурекМи 184м
Суши Wok 235м
Surf Coffee 519м
Медучреждения
Фармленд 39м
Витаминка 65м
АптекаПлюс 169м
Фармленд 226м
Стоматология 263м
Динамика изменения цен на рынке недвижимости ?

По городу Уфа, в категории Офисная недвижимость » Офисы
За последние полгода средняя сумма за кв.м. выросла на 1743 руб. Колебание цен происходило от 25377 руб. до 29572 руб. На текущий момент наблюдается тенденция к росту цены.
Похожие объявления
Обновлено
19.03.2026
Фотографии
9
Объявление 728661
Уфа, Достоевского улица, д.1
2 065 568
руб. Продажа
89.9 м2
Обновлено
19.03.2026
Фотографии
12
Объявление 728662
Уфа, Левитана улица, д.38
17 578 688
руб. Продажа
96.3 м2
Обновлено
16.03.2026
Фотографии
8
Объявление 735689
Уфа, Короленко улица, д.3
2 785 560
руб. Продажа
100.2 м2
Обновлено
13.03.2026
Фотографии
15
Объявление 720552
Уфа, Карла Маркса улица, д.53
5 632 000
руб. Продажа
96.3 м2
Вход в личный кабинет